Oiro
£1,450,000
A striking five double bedroom Dutch Barn, available off-plan for full choice of specification
A:kings wood farm, dorset
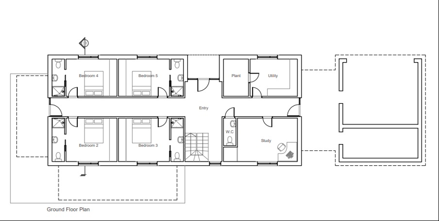
5
BEDROOMS
5
BATHROOMS
3
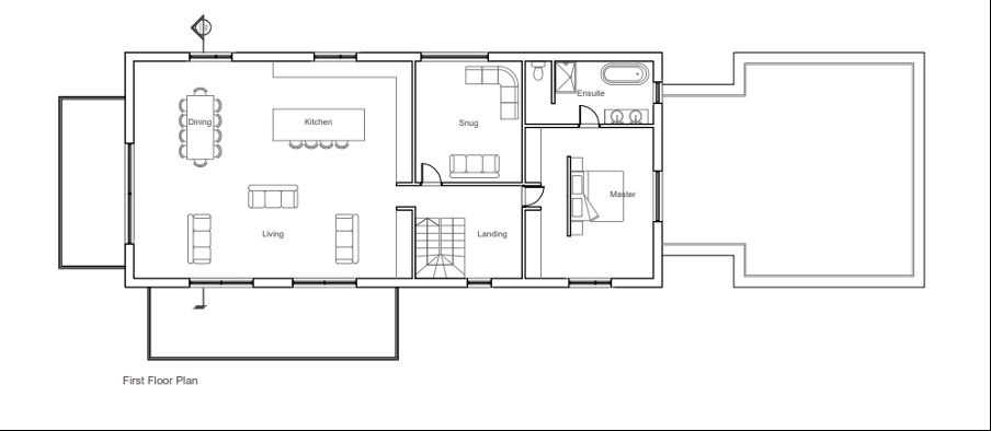
RECEPTIONS
FEATURES
A superb new eco-home of c.300 sq. m. (3,230 sq. ft.)
5 double bedrooms, all with en suite bathrooms
Striking Dutch barn design with vaulted ceilings and open-plan living spaces
Large kitchen / dining / living room (10m x 8m), study and separate TV room
Exceptional energy efficiency – solar park, air source heat pump & full underfloor heating
Generous private garden with far-reaching views
Exclusive development of 7 houses set in 10 acres
Available off-plan with choices of kitchen, bathrooms, flooring and landscaping
3-bedroom house available to rent free of charge during construction
Just a short drive from Gillingham Station
Register to Property Alerts
Ever missed out on the perfect property just because you heard about it too late, or the Estate Agent never told you about it as it was slightly outside of your criteria? Never miss out again by using our “Heads Up Property Alerts”.
WHY CHOOSE US?
For sellers and landlords who value honest advice, expert strategy, and a team that sees every detail through, Roderick Thomas delivers results without the usual noise. We tell you what works, act on it, and get it done.










